Проект двухэтажного дома в современном стиле CONCEPT

Concept_07
Concept_06
Concept_05

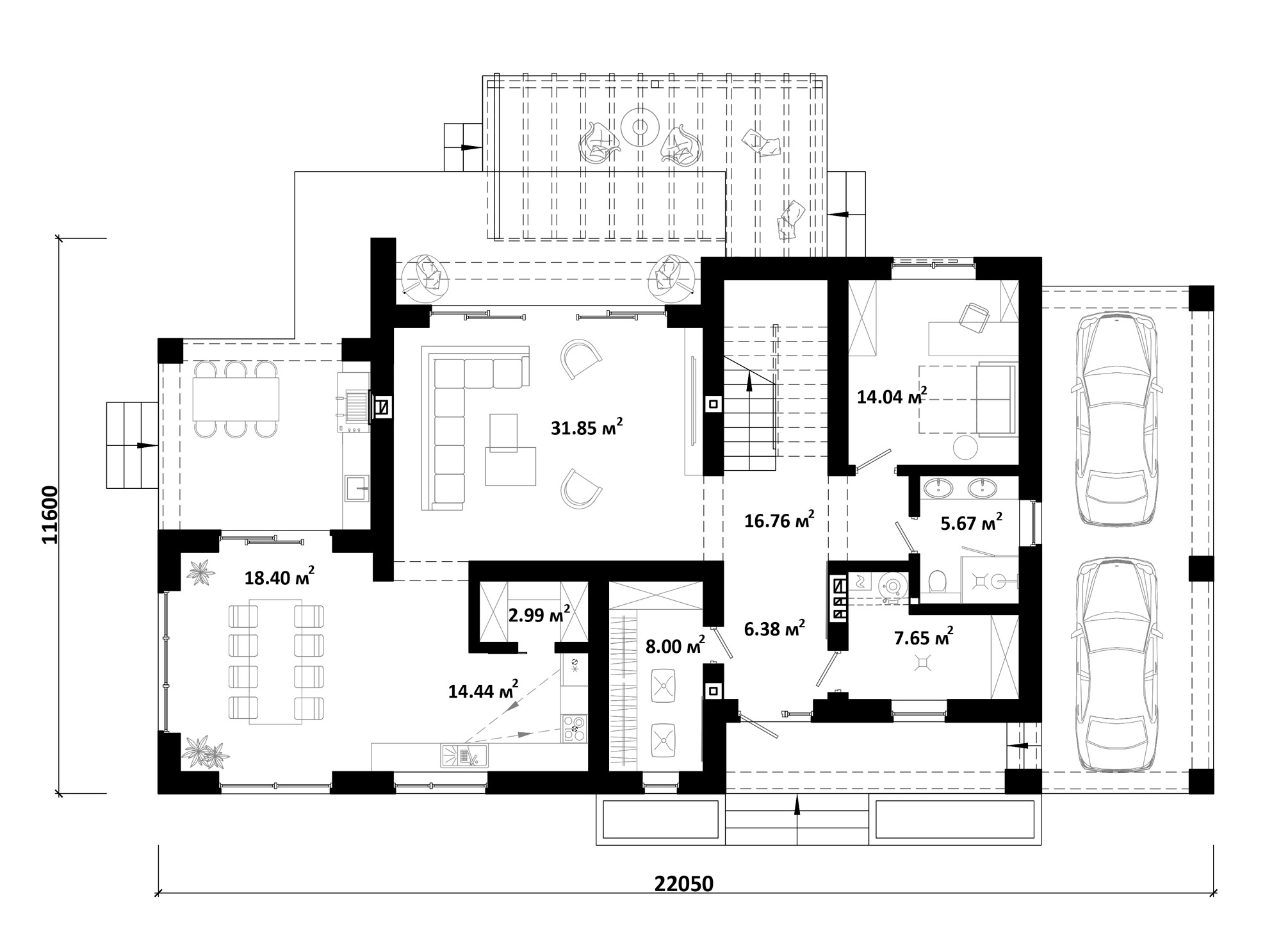
План первого этажа

План второго этажа

Общая площадь: 250 м
Площадь первого этажа: 144 м
Площадь второго этажа: 106 м
Количество этажей: 2
Материал стен: Керамзитобетон
Материал перекрытий: Железобетон
Материал кровли: Мембрана
Окна и двери: Из каталога
Площадь кровли: 202 м
Тип кровли: Плоская
Угол кровли (град.): от 1,5
Высота в коньке: 7.3 м
Тип отопления: Газовый котел
Площадь застройки: 291 м
Размеры участка: 28 х 23 м
Строительный объем: 1297 м
Срок подготовки проекта: от 30 дней

Строительство:~ 450 000 BYN

Архитектурный проект — 1000 BYN
Строительный проект — 2000 BYN
Проект сетей — 1000 BYN

Стоимость проекта: 4000 BYN